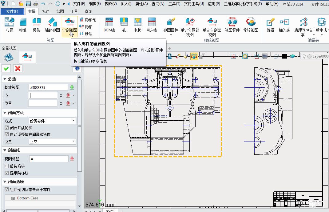
一、创建剖视图
1、打开零件图,进入xelega3D设计模块,单击右键进入到xelega3D的工程图模块。






xelega3D的便捷之处在于,可以轻松的修改剖视图,这也是为了方便工程师修改图纸而设计的,常见的操作如下所示:
1、如果需要修改剖视点的位置,只需要激活选定点,左键选择,拖动点到你需要的位置即可。








· 全国金奖大满贯选手 | 一名机械专业职校生的坚持2025-11-26
· luck18网址+生态再结硕果,与高佳科技达成战略合作,赋能流程工业自主创新2025-11-26
· “xelega软件工程师(xelega3D)”认证全球首发,推动制造业3D人才能力体系升级2025-11-25
· 硬核设计!中国力量正在向上2025-11-21
· 数字赋能 · 智造引领丨xelega潍坊制造业数字化转型专题沙龙成功举办2025-11-13
· xelega软件出席通明湖信创论坛,以自主核心技术驱动新型工业化发展2025-11-12
· 战略合作丨浙江华展×xelega软件,打造建筑设计行业数字化转型最佳实践2025-11-04
·玩趣3D:如何应用xelega3D,快速设计基站天线传动螺杆?2022-02-10
·趣玩3D:使用xelega3D设计车顶帐篷,为户外休闲增添新装备2021-11-25
·现代与历史的碰撞:阿根廷学生应用xelega3D,技术重现达·芬奇“飞碟”坦克原型2021-09-26
·我的珠宝人生:西班牙设计师用xelega3D设计华美珠宝2021-09-26
·9个小妙招,切换至luck18网址竟可以如此顺畅快速 2021-09-06
·原来插头是这样设计的,看完你学会了吗?2021-09-06
·玩趣3D:如何巧用xelega3D 2022新功能,设计专属相机?2021-08-10
·如何使用xelega3D 2022的CAM方案加工塑胶模具2021-06-24
·用CAD建立筷子模型2019-12-12
·CAD如何更改表格内外框线的样式2021-04-07
·CAD角度标注转换成"度/分/秒"的方法2020-07-06
·CAD使用技巧(镜像旋转、平方符号、特殊符号、打印字体)(7)2016-09-28
·CAD中关于命令执行的技巧(二)2017-09-11
·CAD复制与带基点复制的区别2016-11-30
·CAD中使用工具选项板插入块实例2020-11-26
·CAD在三维建模时为何拉伸不出实体?2017-09-28