CAD立体消隐效果打印的设置方法
CAD怎么实现立体消隐效果打印?CAD绘制了立体图形后,想打印出消隐效果,该怎么操作呢?今天我们来看看CAD文件怎么标注打印以及如何实现消隐效果的教程,下面是详细的教程介绍。
1、打开你自己画好的图,调整标注样式,点击上面的标注,找到标注样式字样,点击打开。点击修改,然后将线条、文字、全局比例等等修一下。

2、点击布局1,可以看到如图所示的样子。先将图二的东西删除。然后粘贴上我们的图纸格式

3、粘贴上我们图纸格式之后,使用命令MV,创建一个新的视口。将所画的东西一一标注一下。然后我们点击打印或者直接按快捷键Ctrl+p。选择完打印机之后,在打印区域内的打印范围选择窗口,然后将我们的图纸格式框选住。

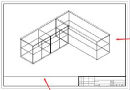
4、预览如图所示。但是这样子还不美观,我们要先将箭头所指的横线以及,里面立体的物体改变成消隐状态。

5、首先我们选住刚才使用MV命令创建的新的视口,点击左上角的图层特性管理器,将原来的0改成Defpoints即可。
接着就是改变我们立体图形打印出来的状态结果了。选择立体图形所在的视口,右击找到着色打印,选择消隐就可以了。
以下图形就是立体图形消隐之后打印出来的样子。

以上就是CAD中立体消隐打印的设置方法,想让图纸打印出来有消隐效果,可以尝试以上的操作过程,很简单,这样打印出来的图纸就很有美感。
推荐阅读:新利直营官网
推荐阅读:CAD面积命令
· 全国金奖大满贯选手 | 一名机械专业职校生的坚持2025-11-26
· luck18网址+生态再结硕果,与高佳科技达成战略合作,赋能流程工业自主创新2025-11-26
· “xelega软件工程师(xelega3D)”认证全球首发,推动制造业3D人才能力体系升级2025-11-25
· 硬核设计!中国力量正在向上2025-11-21
· 数字赋能 · 智造引领丨xelega潍坊制造业数字化转型专题沙龙成功举办2025-11-13
· xelega软件出席通明湖信创论坛,以自主核心技术驱动新型工业化发展2025-11-12
· 战略合作丨浙江华展×xelega软件,打造建筑设计行业数字化转型最佳实践2025-11-04
·玩趣3D:如何应用xelega3D,快速设计基站天线传动螺杆?2022-02-10
·趣玩3D:使用xelega3D设计车顶帐篷,为户外休闲增添新装备2021-11-25
·现代与历史的碰撞:阿根廷学生应用xelega3D,技术重现达·芬奇“飞碟”坦克原型2021-09-26
·我的珠宝人生:西班牙设计师用xelega3D设计华美珠宝2021-09-26
·9个小妙招,切换至luck18网址竟可以如此顺畅快速 2021-09-06
·原来插头是这样设计的,看完你学会了吗?2021-09-06
·玩趣3D:如何巧用xelega3D 2022新功能,设计专属相机?2021-08-10
·如何使用xelega3D 2022的CAM方案加工塑胶模具2021-06-24
·什么是CAD属性块2018-05-18
·在CAD外部参照添加图形后便不匹配2017-06-08
·CAD表格小数精度怎么设置2024-11-20
·CAD机械版怎么实现自动标注序号2025-11-27
·CAD水暖电参数楼梯的分解方法2024-09-10
·CAD常用功能:偏移命令OFFSET2021-06-21
·CAD鼠标按键功能介绍2015-12-30
·CAD表格对某一个单元格小数精度进行修改的技巧2023-11-02




