CAD图纸一定需要比例的原因分析
小编认为,一张图纸就像是一份严谨又详细的产品说明书,其意义就在于将单个工作成果进行总结展示,并以此为依据,提供给各方进行协助配合,从而达到共同的目标。而比例这一特性,就是出于图纸严谨这一特性而产生的。下面以样例图纸为例,说明比例的含义:

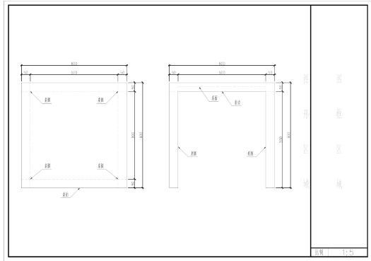
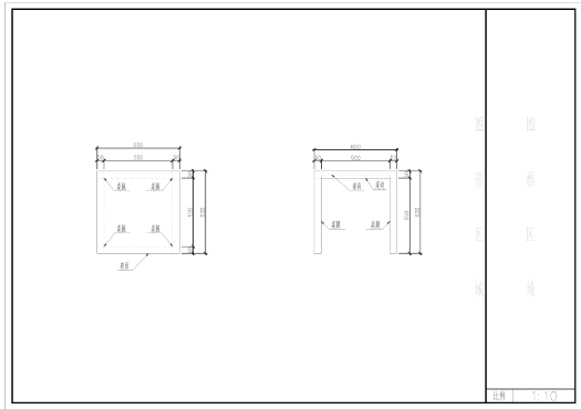
上图与下图为同一张桌子在不同比例的A3图纸下的样子,可以看到,在比例由1:5变成1:10后,桌子在图中的大小也变成了原来的1/2。需要注意的是,图中实体类的图元大小发生了改变,而如标注、说明文字等注释类的图元,其大小却是不变的.

假设一个制作家具的人拿到这份图纸后,不需要任何其他的面对面沟通,他就能够知道,我们需要制作一个方形的桌子 ,桌子变长均为600毫米,有四条腿,每条腿长550毫米,依靠四条宽高均为50毫米的桌边与桌面相连。其中,方形这个信息是由图中的实体形状线获得的,而尺寸由图中的尺寸标注上写的数字获取,每个东西分别是什么功能,由图中的说明文字获得解释,一份粗糙的说明书大概就完成了。
那么,在一份具有足够准确尺寸标注的图纸里,我们还需要按照比例来绘制这些图形的原因是什么?关键就是在于第一步的实体形状线,只有在按照比例绘制的图纸里,我们才能第一眼就对这个物体有一个直观的认识,比如这是一个正方形而不是长方形,比如这张桌子的桌面厚度与他的高度相比是非常小的,桌子下面有较为充裕的空间,避免了潜意识内的错误认识而引起协作各方不必要的工作量。
同时,出于节约纸张的目的,我们自然是想在一张图内放下实体形状越多越好,字体越小越好,比例的分母自然也是越大越好。然而,人眼的识别能力是有限的,过于微小的字体和图形,在阅读起来是极容易出现幻觉和误差的,所以,每张图比例的产生的需要根据图纸的大小、注释文字的多少进行合理的分配,在识别难易度与信息量之间找到一个平衡点。
推荐阅读:CAD中对齐和三维对齐的操作步骤
推荐阅读:3D打印机原理
· 全国金奖大满贯选手 | 一名机械专业职校生的坚持2025-11-26
· luck18网址+生态再结硕果,与高佳科技达成战略合作,赋能流程工业自主创新2025-11-26
· “xelega软件工程师(xelega3D)”认证全球首发,推动制造业3D人才能力体系升级2025-11-25
· 硬核设计!中国力量正在向上2025-11-21
· 数字赋能 · 智造引领丨xelega潍坊制造业数字化转型专题沙龙成功举办2025-11-13
· xelega软件出席通明湖信创论坛,以自主核心技术驱动新型工业化发展2025-11-12
· 战略合作丨浙江华展×xelega软件,打造建筑设计行业数字化转型最佳实践2025-11-04
·玩趣3D:如何应用xelega3D,快速设计基站天线传动螺杆?2022-02-10
·趣玩3D:使用xelega3D设计车顶帐篷,为户外休闲增添新装备2021-11-25
·现代与历史的碰撞:阿根廷学生应用xelega3D,技术重现达·芬奇“飞碟”坦克原型2021-09-26
·我的珠宝人生:西班牙设计师用xelega3D设计华美珠宝2021-09-26
·9个小妙招,切换至luck18网址竟可以如此顺畅快速 2021-09-06
·原来插头是这样设计的,看完你学会了吗?2021-09-06
·玩趣3D:如何巧用xelega3D 2022新功能,设计专属相机?2021-08-10
·如何使用xelega3D 2022的CAM方案加工塑胶模具2021-06-24
·如何调整CAD表格行高2015-12-23
·CAD怎样创建球面坐标2017-04-17
·CAD阵列设置技巧2020-03-11
·为什么使用CAD手绘表格导出会显示”CoCreateInstance Failed“?2024-01-15
·CAD绘制固垫零件平面图2018-01-22
·CAD标注圆和圆弧时没有中心标记的原因2024-03-22
·CAD为什么复制不了2016-04-22
·CAD怎样设置全屏区域2020-01-02




