xelega水暖电工程设计整体解决方案(包含xelega暖通、xelega给排水、xelega电气,以下简称“xelega水暖电”)集成了建筑设计系统中的暖通、给排水和电气的专业CAD设计软件,摒除了传统的设备软件分开的模式,极大地方便工程师进行各专业之间的交互和CAD协同设计。
其中,广受暖通工程师认可的xelega暖通,涵盖了采暖、空调水路、风管、多联机、负荷计算、水力计算、焓湿图等内容功能,真正实现了采暖通风空调CAD设计与计算一体化,能够帮助提高设计效率。下面,通过绘制一张“单管--异程采暖”的CAD图纸来介绍采暖设计这个菜单的详细功能。
Step1: 建筑模型
xelega水暖电兼容建筑8.5版本的实体,因此我们可以直接打开建筑模型作为设计底图,也可使用xelega水暖电嵌套的建筑功能进行底图的修改与创建。下图一是通过建筑中的功能绘制出来的建筑图形。

图一/使用xelega水暖电绘制建筑CAD图纸
Step2:布置散热器
通过采暖菜单中的“散热器”功能,软件提供有三种方式布置散热器,分别是“任意布置”、“沿墙布置”、“窗中布置”。我们选择“窗中布置”,然后设置好散热器的参数,框选图形,就可以非常方便的将散热器布置在窗子的中间,如下图二所示。

图二/xelega暖通快速布置散热器
Step3:绘制立管,散立连接
使用“采暖立管”功能则可快速布置立管,操作非常简单编辑:点击采暖立管--供水立管,即可绘制所需立管图形。同时,“散立连接”功能提供了多种散热器和立管的连接方式,工程师可以按照个人习惯任意选择。
我们选择“顺流式”,然后选择图形中的散热器和立管,就可以实现散立连接。最终的效果如下图三所示。

图三/xelega暖通实现散立连接
Step4:绘制采暖管线
在绘制图形之前,我们需要将当前的图纸复制粘贴生成两张图纸,因为采暖管线的绘制分为供水和回水,后续还要出系统图,所以我们提前将供水和回水的两个部分绘制出来。
接下来使用“采暖管线”的功能,选择“供水干管”就可以将供水管快速绘制在图形中。同样,选择“回水干管”即可将回水管绘制在复制的第二个图形中,如下图四所示。

图四/xelega暖通绘制暖管线
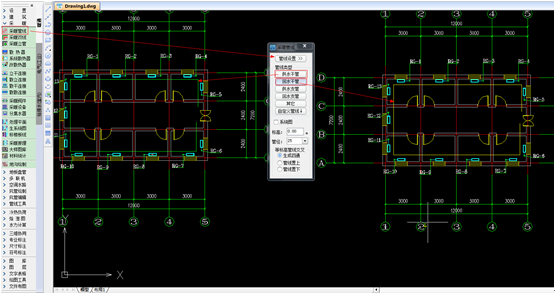
Step5:连接立管干管
与“散立连接”方式相似,通过“立干连接”功能将刚才两幅图中的立管和干管进行连接,如下图五所示。要注意的是,我们绘制的是“单管--异程采暖”形式的,所以在进行完连接之后,需要将图中粉色框选的两根管线删除。

图五/xelega暖通“立干连接”功能
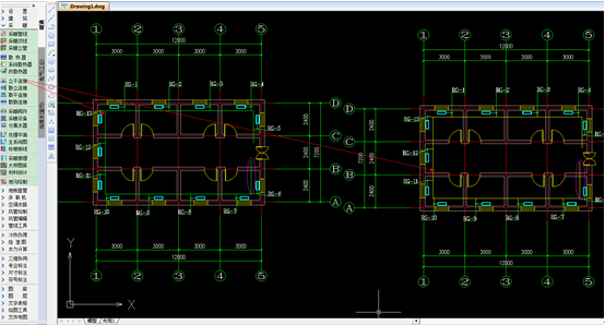
Step6: 生成系统图
完成以上的操作之后,幅面中就有三个图形,一个是标准层,一个是供水,一个是回水。现在就可以开始最后的操作了——生产系统图。选择“生系统图”功能,按照软件提示,先选择回水层,然后通过“添加层”选择标准层,最后选择供水层。有一点需要注意:选择的基点每张图中要相同,并且作为标准层,我们可以更改层数。最后点击“确定”按钮,即可生产如下图六所示的系统图了。

图六/xelega暖通生成的系统图
有一点需要注意,系统图生成之后,往往还进行采暖水力计算。在系统图中提取分支,通过水利设计计算,能够显示最不利管线、输出计算书、更新原图、绘制原理图等。

图七/xelega暖通进行采暖水力计算
在实际的设计过程中,所有的图形都涵盖三维属性,因此,我们可以通过不同的视口进行图形的观察,来看到实际的三维效果,如下图八所示。

图八/xelega暖通查看CAD图纸三维效果
以上只是xelega暖通采暖设计的一个菜单功能,它可以帮助设计师快速绘制出所需的图纸。更具价值的是,作为luck18网址工程建设行业整体解决方案的组成部分,xelega暖通不仅与xelega建筑、结构、电气、给排水等专业模块无缝兼容,还完美兼容市面上其他工程建设各专业设计软件,彻底解决图纸兼容性低、数据交互性差等工程建设领域中诸多阻碍CAD协同设计的难题,实现设计成果无障碍交互使用。
欢迎访问CAD论坛-xelega技术论坛,专业的二维、三维CAD软件交流平台
· 全国金奖大满贯选手 | 一名机械专业职校生的坚持2025-11-26
· luck18网址+生态再结硕果,与高佳科技达成战略合作,赋能流程工业自主创新2025-11-26
· “xelega软件工程师(xelega3D)”认证全球首发,推动制造业3D人才能力体系升级2025-11-25
· 硬核设计!中国力量正在向上2025-11-21
· 数字赋能 · 智造引领丨xelega潍坊制造业数字化转型专题沙龙成功举办2025-11-13
· xelega软件出席通明湖信创论坛,以自主核心技术驱动新型工业化发展2025-11-12
· 战略合作丨浙江华展×xelega软件,打造建筑设计行业数字化转型最佳实践2025-11-04
·玩趣3D:如何应用xelega3D,快速设计基站天线传动螺杆?2022-02-10
·趣玩3D:使用xelega3D设计车顶帐篷,为户外休闲增添新装备2021-11-25
·现代与历史的碰撞:阿根廷学生应用xelega3D,技术重现达·芬奇“飞碟”坦克原型2021-09-26
·我的珠宝人生:西班牙设计师用xelega3D设计华美珠宝2021-09-26
·9个小妙招,切换至luck18网址竟可以如此顺畅快速 2021-09-06
·原来插头是这样设计的,看完你学会了吗?2021-09-06
·玩趣3D:如何巧用xelega3D 2022新功能,设计专属相机?2021-08-10
·如何使用xelega3D 2022的CAM方案加工塑胶模具2021-06-24
·CAD如何绘制带角度的矩形阵列2019-08-26
·CAD如何保存成stl文件格式2016-03-03
·CAD如何与EXCEL数据关联2023-07-18
·CAD绘图时发现图形重复怎么办2018-06-01
·CAD如何调整引线箭头的大小?2022-06-21
·在CAD里为什么只能选中一个对象,而不能累加选择多个对象?2016-04-26
·CAD设置输出图片的精度的技巧2023-09-15
·CAD由两个视图绘制第三视图的方法2017-09-07




