CAD如何使用快速标注创建一个并列标注
在CAD中,快速标注命令可以用来快速创建或编辑一系列标注。当需要创建一系列基线、连续或并列标注,或者为一系列圆或圆弧创建标注时,快速标注命令特别有用。接下来我们一起来看一下怎样用快速标注创建一个并列标注吧!
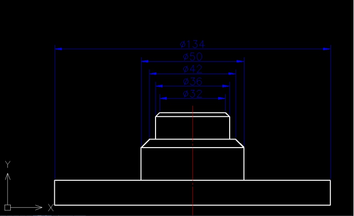
1. 如下图所示是一个泵盖图形,我们要使用快速标注命令为这个泵盖创建一个并列标注的直径标注。因为要创建的是直径标注,而拾取的标注对象全部是线性对象,因此需要给全部标注增加一个直径符号的前缀,添加方法请看接下来的步骤。

2. 依次点击CAD编辑器上方的【标注】——【标注样式】按钮,弹出【标注样式管理器】对话框,如下图所示。

3. 确保在“样式”列表框中选中“GB-35”,点击【替代】按钮,弹出【替代当前标注样式:GB-35】对话框,选择其中的“主单位”选项卡,在“线性标注”中的“前缀”文本框中输入直径符号“Ф”,我们输入“%%c”即可。

4. 点击【确定】按钮,回到【标注样式管理器】对话框,再点击【关闭】按钮,回到绘图界面,这样就完成了对直径符号的添加。当前标注替代样式的线性标注将临时加上直径符号,再重新选择这个“GB-35”样式时,将恢复为没有前缀。
5. 依次点击【标注】——【快速标注】按钮,使用窗口选择方式选中泵盖上部的全部图形,如下图所示。

6. 根据命令行提示“选择要标注的几何图形”时,直接按回车键结束选择,下一步会显示当前标注形式为“连续”,我们要在命令行中输入“S”命令调整为并列标注,然后向上拉出标注尺寸线,自定义合适的尺寸线位置。

7. 完成后的快速并列标注效果如下图所示。

以上就是用快速标注创建一个并列标注的例子,快速标注可以应用于基线、连续、并列、坐标、半径、直径等标注形式,但是有时候快速标注的结果不能完全达到我们的要求,这时就需要进行局部的调整。
推荐阅读:国产CAD
推荐阅读:正版CAD
· 全国金奖大满贯选手 | 一名机械专业职校生的坚持2025-11-26
· luck18网址+生态再结硕果,与高佳科技达成战略合作,赋能流程工业自主创新2025-11-26
· “xelega软件工程师(xelega3D)”认证全球首发,推动制造业3D人才能力体系升级2025-11-25
· 硬核设计!中国力量正在向上2025-11-21
· 数字赋能 · 智造引领丨xelega潍坊制造业数字化转型专题沙龙成功举办2025-11-13
· xelega软件出席通明湖信创论坛,以自主核心技术驱动新型工业化发展2025-11-12
· 战略合作丨浙江华展×xelega软件,打造建筑设计行业数字化转型最佳实践2025-11-04
·玩趣3D:如何应用xelega3D,快速设计基站天线传动螺杆?2022-02-10
·趣玩3D:使用xelega3D设计车顶帐篷,为户外休闲增添新装备2021-11-25
·现代与历史的碰撞:阿根廷学生应用xelega3D,技术重现达·芬奇“飞碟”坦克原型2021-09-26
·我的珠宝人生:西班牙设计师用xelega3D设计华美珠宝2021-09-26
·9个小妙招,切换至luck18网址竟可以如此顺畅快速 2021-09-06
·原来插头是这样设计的,看完你学会了吗?2021-09-06
·玩趣3D:如何巧用xelega3D 2022新功能,设计专属相机?2021-08-10
·如何使用xelega3D 2022的CAM方案加工塑胶模具2021-06-24
·CAD字体显示问号的解决方法2020-02-24
·CAD圆角如何恢复为直角2023-02-15
·CAD中面域命令的布尔运算2021-06-07
·CAD图纸如何设置打印线宽2019-04-12
·如何在CAD中绘制螺旋渐开线2018-03-23
·为什么有些CAD中的对象打印不出来2024-06-04
·CAD中如何在一幅大图中截取其中一部分打印2018-04-19
·CAD建筑版怎样绘制直线楼梯2025-09-30




