CAD中注释性标注和一般标注有何不同
在使用CAD时,注释性可以让同一图形在不同比例的布局视口里文字和标注文字显示的高度保持一致。 使用注释性便可以不用繁琐地设置不同的全局比例和文字高度。
以标注为例:在标注样式(快捷键D)中,勾选“注释性”。

标注就是具有注释性的标注。
完成标注后,转至视口中,确保左边两个关于注释性的选项打开。
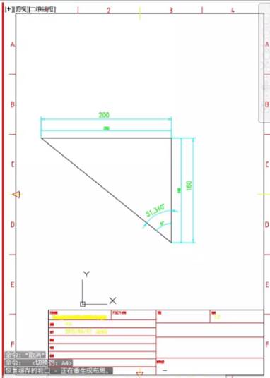
在下面的三角形例子中,两个标注中上面那个具有注释。

可以看到两个标注的文字高度是一样的,此时视口的比例是1:1。接下来更改视口比例至1:2。可以看到,不带注释性的标注跟着一起缩小了,带注释性的标注文字(还有箭头)相对图纸的高度并没有减小。

推荐阅读:CAD制图初学入门
推荐阅读:3D打印机
· 全国金奖大满贯选手 | 一名机械专业职校生的坚持2025-11-26
· luck18网址+生态再结硕果,与高佳科技达成战略合作,赋能流程工业自主创新2025-11-26
· “xelega软件工程师(xelega3D)”认证全球首发,推动制造业3D人才能力体系升级2025-11-25
· 硬核设计!中国力量正在向上2025-11-21
· 数字赋能 · 智造引领丨xelega潍坊制造业数字化转型专题沙龙成功举办2025-11-13
· xelega软件出席通明湖信创论坛,以自主核心技术驱动新型工业化发展2025-11-12
· 战略合作丨浙江华展×xelega软件,打造建筑设计行业数字化转型最佳实践2025-11-04
·玩趣3D:如何应用xelega3D,快速设计基站天线传动螺杆?2022-02-10
·趣玩3D:使用xelega3D设计车顶帐篷,为户外休闲增添新装备2021-11-25
·现代与历史的碰撞:阿根廷学生应用xelega3D,技术重现达·芬奇“飞碟”坦克原型2021-09-26
·我的珠宝人生:西班牙设计师用xelega3D设计华美珠宝2021-09-26
·9个小妙招,切换至luck18网址竟可以如此顺畅快速 2021-09-06
·原来插头是这样设计的,看完你学会了吗?2021-09-06
·玩趣3D:如何巧用xelega3D 2022新功能,设计专属相机?2021-08-10
·如何使用xelega3D 2022的CAM方案加工塑胶模具2021-06-24
·CAD插入参照绘图2019-12-31
·CAD怎样打散块2016-01-15
·CAD中使文字显示为方框的操作方法2017-11-16
·CAD中如何更改配色2020-08-31
·怎样用CAD调整文字位置?2020-01-10
·CAD加载外部参照时为什么外部参照管理器提示【未融入】2024-05-17
·CAD圆和圆弧显示多边形的原因和解决办法2018-12-07
·CAD连续标注和基线标注怎么用2016-10-11




