什么是CAD中的UCS(用户坐标系)
CAD软件提供了一个虚拟的二维和三维空间,这个空间需要一个基准,这个基准就是世界坐标系(WCS)。但在有些特殊情况下,在世界坐标系下绘图并不是很方便,因此用户会根据自己的需要设置一个新的参考坐标系,这个坐标系就叫用户坐标系(User Coordinate System),简称为UCS。在CAD中输入UCS命令,就可以根据不同的条件设置用户坐标系,通常有下面几种方式:设置新的坐标原点,旋转某个轴向,以某个对象为基准设置坐标系,以三维模型的某个面来定义UCS方便后续建模。下面给大家介绍几种UCS坐标系的应用。
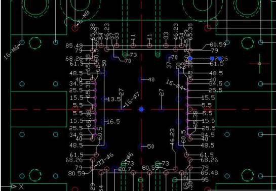
一、调整坐标原点,方便进行坐标标注
在一些机械零件图纸中会有大量的孔或其他图形特征,设计人员通常的做法是在图形中确定一个基点,将UCS原点调整到基点处,然后利用坐标标注来进行尺寸标注。如果结合连续标注,标注会非常快,而且图面也很整齐,如下图所示。

在上图中可以看到UCS坐标原点被定为到中心线的交点处,当然也可以将图形整体移动,让中心线的交点正好位于世界坐标系的原点,但如果一张图纸中有多个零件图形就只能用UCS了。
二、调整坐标方向,方便绘制倾斜图纸
一些小区和市政规划图是倾斜的,如下图所示。

在图纸倾斜状态下进行绘图或出图都很不方便,因此通常会将坐标系进行旋转,将图形转成正向。基本操作方法如下:
1、输入UCS命令,回车。
2、输入Z选项,输入需要旋转的角度,将UCS沿Z周旋转一定角度。
3、输入PLAN命令,回车,将视图切换为UCS的平面视图,如下图所示。

推荐阅读:机械CAD
· 全国金奖大满贯选手 | 一名机械专业职校生的坚持2025-11-26
· luck18网址+生态再结硕果,与高佳科技达成战略合作,赋能流程工业自主创新2025-11-26
· “xelega软件工程师(xelega3D)”认证全球首发,推动制造业3D人才能力体系升级2025-11-25
· 硬核设计!中国力量正在向上2025-11-21
· 数字赋能 · 智造引领丨xelega潍坊制造业数字化转型专题沙龙成功举办2025-11-13
· xelega软件出席通明湖信创论坛,以自主核心技术驱动新型工业化发展2025-11-12
· 战略合作丨浙江华展×xelega软件,打造建筑设计行业数字化转型最佳实践2025-11-04
·玩趣3D:如何应用xelega3D,快速设计基站天线传动螺杆?2022-02-10
·趣玩3D:使用xelega3D设计车顶帐篷,为户外休闲增添新装备2021-11-25
·现代与历史的碰撞:阿根廷学生应用xelega3D,技术重现达·芬奇“飞碟”坦克原型2021-09-26
·我的珠宝人生:西班牙设计师用xelega3D设计华美珠宝2021-09-26
·9个小妙招,切换至luck18网址竟可以如此顺畅快速 2021-09-06
·原来插头是这样设计的,看完你学会了吗?2021-09-06
·玩趣3D:如何巧用xelega3D 2022新功能,设计专属相机?2021-08-10
·如何使用xelega3D 2022的CAM方案加工塑胶模具2021-06-24
·CAD如何绘制铰套2019-08-22
·在CAD中快速查询面积的方法2018-07-24
·CAD多点连线插件:图纸绘制快人一步2025-11-21
·在CAD中怎样填充剖面线?2020-05-25
·cad打印pdf字体变问号2016-12-07
·CAD的三维建模教程解说2017-09-26
·CAD光标移动卡顿2023-05-04
·CAD怎么打印黑白图纸2023-11-03




