xelega给排水是集建筑室内给排水和室外给排水(含小区管网)绘图及专业计算于一体的给排水设计软件,具有极大的技术优势:采用智能化的自定义实体技术,管线与设备完全自动处理相互关系,实现了室内给排水设计、消防喷淋设计、虹吸雨水设计、水泵房设计、室外雨污管网设计等,能够大幅度简化CAD设计流程,提高设计师的工作效率。
下面,通过消防喷淋设计全流程展示xelega给排水在智能绘图和专业计算一体化上的便捷和精确。
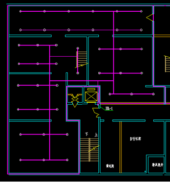
第一、喷头布置
现代新型建筑物一般都是不规则的,因此在设计过程中,我们可以将这样一个不规则的防火分区划分为若干个规则的区域来进行喷头的布置。xelega给排水提供了多种喷头布置方式:交点喷头、直线喷头、弧线喷头、矩形喷头、扇形喷头、等距喷头、任意喷头等。对于下图所示的户型区域内,可以分为7个矩形区域来进行喷头布置。

首先布置“1”区喷头,在xelega给排水中执行“矩形喷头”命令,选择不同的危险等级来确定最大最小行列间距,这里选择“中危Ⅰ级”,管标高设置3米,勾选预演保护半径。在布置喷头的过程中,设计师可以即时查看是否覆盖全部区域。值得一提的是,在喷头布置的同时,支管也一起随之布置连接完成,非常快速高效。

图/xelega给排水CAD喷头布置
第二、布置干管立管
使用CAD软件上的管线菜单中的“立管布置”功能,采用“墙角布置”快速布置喷淋立管。当立管布置好后,绘制干管将立管和支管连接起来,设计师在“绘制管线”的时候不需要选择管线类型,只需要点击一下立管,系统会自动跳到相应的管线类型,非常智能。

图/xelega给排水CAD智能布置干管立管
第三、喷头尺寸标注
接下来执行“平面消防”中的“喷头尺寸”,只需框选喷头,所有框选喷头间的尺寸将标识出来。更重要的是,双击标注好的尺寸可以快速标注喷头与轴线之间的距离。
第四、管径标注
管径标注也有危险等级设置,此时采用与喷头布置一致的危险等级。根据管径标注数量和比例来设定不同的管径文字高度以达到清晰的效果。在xelega给排水中执行“喷淋管径”命令,选择喷淋干管,系统将一次性完成所有的管径标注,可以节省大量时间。

图/xelega给排水CAD实现快速标注
第五、喷淋计算
喷淋计算以图形绘制过程中设置的相关参数为基础,根据自动喷水灭火系统设计规范计算出水管中水的流速、流量、压力等,当流速大于5m/s时将以紫色显示提示设计师进行管径校正,校正管径后图纸中的管径自动根据计算结果进行管径调整。同时,xelega给排水可以快速生成计算书和计算表。

图/xelega给排水CAD人性化的管径校正功能
至此,消防喷淋设计基本完成。需要强调,xelega给排水通过喷淋的快速绘制和喷淋计算验证喷淋布置是否合理,同时校正管径将结果反馈到图形绘制中,实现绘图与计算的智能一体化,从而确保设计的合理性和科学性。
小结:作为luck18网址工程建设行业整体解决方案的组成部分,xelega给排水不仅具备室内室外给排水设计所需的专业功能,与xelega建筑、结构、暖通、给排水等专业模块无缝兼容,并且完美兼容市面上其他工程建设各专业设计软件,彻底解决图纸兼容性低、数据交互性差等工程建设领域中诸多阻碍CAD协同设计的难题,从而提高给排水设计的科学性和效率。
点击免费下载xelega水暖电//www.xelega.com/product/mep/?fm=flash
欢迎访问CAD论坛-xelega技术论坛,专业的二维、三维CAD软件交流平台
· 全国金奖大满贯选手 | 一名机械专业职校生的坚持2025-11-26
· luck18网址+生态再结硕果,与高佳科技达成战略合作,赋能流程工业自主创新2025-11-26
· “xelega软件工程师(xelega3D)”认证全球首发,推动制造业3D人才能力体系升级2025-11-25
· 硬核设计!中国力量正在向上2025-11-21
· 数字赋能 · 智造引领丨xelega潍坊制造业数字化转型专题沙龙成功举办2025-11-13
· xelega软件出席通明湖信创论坛,以自主核心技术驱动新型工业化发展2025-11-12
· 战略合作丨浙江华展×xelega软件,打造建筑设计行业数字化转型最佳实践2025-11-04
·玩趣3D:如何应用xelega3D,快速设计基站天线传动螺杆?2022-02-10
·趣玩3D:使用xelega3D设计车顶帐篷,为户外休闲增添新装备2021-11-25
·现代与历史的碰撞:阿根廷学生应用xelega3D,技术重现达·芬奇“飞碟”坦克原型2021-09-26
·我的珠宝人生:西班牙设计师用xelega3D设计华美珠宝2021-09-26
·9个小妙招,切换至luck18网址竟可以如此顺畅快速 2021-09-06
·原来插头是这样设计的,看完你学会了吗?2021-09-06
·玩趣3D:如何巧用xelega3D 2022新功能,设计专属相机?2021-08-10
·如何使用xelega3D 2022的CAM方案加工塑胶模具2021-06-24
·在CAD中怎样查看一条线段的长度2016-08-03
·CAD世界坐标和用户坐标有什么不同2017-03-15
·cad中角平分线精确画法2019-06-20
·CAD中如何批量删除填充图案?2022-06-23
·CAD怎样设置自动捕捉标记的粗细2025-07-28
·CAD图形单位功能可以怎么用?2020-04-01
·CAD怎么将复制的对象合并在指定图层上2024-10-17
·CAD无法拉伸,选择不了面2016-11-01




