【样条曲线】是常常用来表示机械制图中分断面的部分,还可以在建筑图中表示地形地貌等。启动【样条曲线】命令的方式有以下的几种。
1.命令行:输入SPLINE/SPL命令
2.菜单栏:选择【绘图】--【样条曲线】菜单命令
3.工具栏:单击工具栏中的【样条曲线】图标 
下面我们举个例子,我们该如何操作绘制样条曲线。
1.我们打开素材,

2.我们沿着A-E的路线去绘制我们的样条曲线。

3.我们选在【绘图】--【样条曲线】菜单命令

4.我们完成操作时,是如下图的。

如何去编辑我们绘制好的样条曲线呢?
我们可以看到我们绘制出来的样条曲线并不吻合旁边的那条曲线。这时候我们就可以利用样条曲线编辑命令对我们的曲线进行编辑,异化的符合我们需要的样条曲线。
启动【编辑样条曲线】命令的方式有以下几种。
1.命令行:输入SPLINEDIT/SPE命令
2.菜单栏:选择【修改】--【对象】--【样条曲线】菜单命令。
启动样条曲线编辑命令后,命令行就会出现如下的命令提示

这个命令行部分选项含义如下。
1. 闭合样条(C)
选取该选项,可以将样条曲线封闭。
2. 顶点(V)
选择该项之后,被选择的样条曲线将显示其顶点,这是后可以根据命令行提示对其进行编辑。
3.反向(E)
这个选项可以将样条曲线的起点和终点进行翻转,
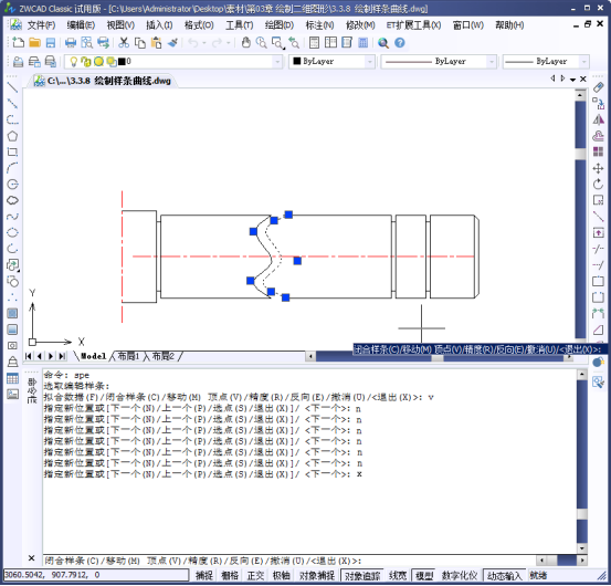
我们来举个例来看看,如何灵活运用该命令吧。
1. 我们通过输入命令SPE,得到下图

2. 我们选取我们需要编辑的样条曲线,进行操作。参考下图。

5.完成上面操作后,我们就能得到我们需要的样条曲线了。